Rating 4.6 (28)

033 | Cranberry Cottage


Address 10237 S. Old Oregon Inlet Rd.
Town South Nags Head
Location Oceanfront
Type Home
Milepost Milepost 20.5
Bedroom 5 bedrooms
Bathroom 3 baths
Half Bathroom 1 half bath
Pets Allowed Pets Allowed
Checking day Saturday

Location Location

Description Description
Ocean, Beach, and Sound views await your family at the Cranberry Cottage. Situated on the Oceanfront in peaceful South Nags Head, this traditional beach cottage is Pet Friendly, boasts lots of Window, Access to the Sun Deck w/Terrific Ocean, Beach Views, and an Observation Deck where you can enjoy vistas that stretch from the Bay to Ocean. Warm, inviting, this home has comfortable furnishing and decor throughout. This home offers a quiet, relaxing location, yet it is convenient to area restaurants, shopping, the Outer Banks Fishing Pier, Oregon Inlet Fishing Center, and the undeveloped beaches of the Cape Hatteras National Seashore. The Manteo Waterfront, the Lost Colony Outdoor Drama, and Pirates Cove Marina are a short drive away.

Ground Level: Parking for 4 Cars, Overflow Parking for Two (2) Cars at Road End of Driveway, Steps to Entry, and Gas Grill.

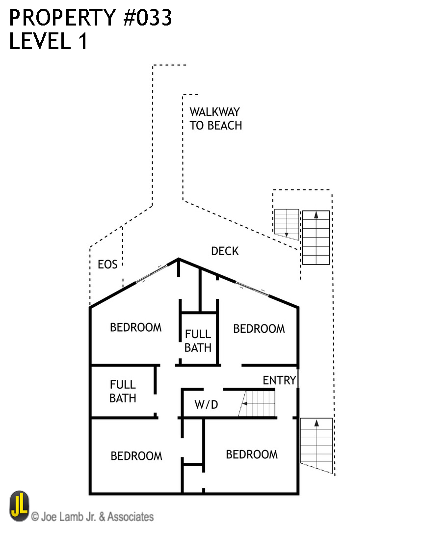
Level 1: 4 Bedrooms (Private Suite w/Queen, TV, Full Bath w/Shower; 1 w/Queen, TV; 1 w/2 Bunk Sets; 1 w/2 Singles), Full Hall Bath w/Tub/Shower, Laundry Area, and Access to Covered Porch w/Deck Furniture, Enclosed Outside Shower.

Level 2: Living Area, TV, Gas Fireplace, Beautiful Ocean Views; Kitchen w/Stainless Steel Appliances, Bar Seating for Four (4); Dining Table w/Seating for 10; Half Bath; and Access to Sun Deck and Covered Deck w/Deck Furniture and Walkway to Beach w/Outstanding Ocean Views.

Top Level: Private Suite w/King, TV, Full Bath w/Tub; Seating Area; and Access to Sun Deck w/Steps to Observation Deck w/Deck Furniture and Endless Ocean and Sound Views.

Features include: C/AC-Heat, Washer/Dryer, Microwave, TVs, Wireless Internet, Ceiling Fans, and Deck Furniture. Two Mature Dogs Allowed w/Fees. No Smoking Allowed.

Beach Nourishment Beach Nourishment

This property is located in an area that is scheduled to receive beach nourishment beginning in the spring and continuing through the summer of 2026. The purpose of the project is to widen beach areas in the Town of Nags Head.

To learn more about this project, please visit More Beach to Love (https://www.darenc.gov/government/beach-nourishment/upcoming-projects).

Beach nourishment information is subject to change.


Availability Calendar Availability Calendar
Please select dates for price quote
Available
Unavailable
Check-In
Check-Out
May 2026
Su Mo Tu We Th Fr Sa
          1 2
3 4 5 6 7 8 9
10 11 12 13 14 15 16
17 18 19 20 21 22 23
24 25 26 27 28 29 30
31            
June 2026
Su Mo Tu We Th Fr Sa
  1 2 3 4 5 6
7 8 9 10 11 12 13
14 15 16 17 18 19 20
21 22 23 24 25 26 27
28 29 30        
July 2026
Su Mo Tu We Th Fr Sa
      1 2 3 4
5 6 7 8 9 10 11
12 13 14 15 16 17 18
19 20 21 22 23 24 25
26 27 28 29 30 31  
August 2026
Su Mo Tu We Th Fr Sa
            1
2 3 4 5 6 7 8
9 10 11 12 13 14 15
16 17 18 19 20 21 22
23 24 25 26 27 28 29
30 31          
September 2026
Su Mo Tu We Th Fr Sa
    1 2 3 4 5
6 7 8 9 10 11 12
13 14 15 16 17 18 19
20 21 22 23 24 25 26
27 28 29 30      
October 2026
Su Mo Tu We Th Fr Sa
        1 2 3
4 5 6 7 8 9 10
11 12 13 14 15 16 17
18 19 20 21 22 23 24
25 26 27 28 29 30 31
November 2026
Su Mo Tu We Th Fr Sa
1 2 3 4 5 6 7
8 9 10 11 12 13 14
15 16 17 18 19 20 21
22 23 24 25 26 27 28
29 30          
December 2026
Su Mo Tu We Th Fr Sa
    1 2 3 4 5
6 7 8 9 10 11 12
13 14 15 16 17 18 19
20 21 22 23 24 25 26
27 28 29 30 31    
January 2027
Su Mo Tu We Th Fr Sa
          1 2
3 4 5 6 7 8 9
10 11 12 13 14 15 16
17 18 19 20 21 22 23
24 25 26 27 28 29 30
31            
February 2027
Su Mo Tu We Th Fr Sa
  1 2 3 4 5 6
7 8 9 10 11 12 13
14 15 16 17 18 19 20
21 22 23 24 25 26 27
28            
March 2027
Su Mo Tu We Th Fr Sa
  1 2 3 4 5 6
7 8 9 10 11 12 13
14 15 16 17 18 19 20
21 22 23 24 25 26 27
28 29 30 31      
April 2027
Su Mo Tu We Th Fr Sa
        1 2 3
4 5 6 7 8 9 10
11 12 13 14 15 16 17
18 19 20 21 22 23 24
25 26 27 28 29 30  
May 2027
Su Mo Tu We Th Fr Sa
            1
2 3 4 5 6 7 8
9 10 11 12 13 14 15
16 17 18 19 20 21 22
23 24 25 26 27 28 29
30 31          
Swipe Swipe for Availability

Bedding Bedding
1 King
2 Queen
2 Single
2 Bunk Set

Amenities Amenities
Additional Amenities
Appliances
  • Keurig
  • Regular Coffee Maker(s)
Beach Access
  • Direct Access - Pedestrian Walkway
  • Private Walkway
Dog Friendly
  • Any Breed w/Previously Displayed Vicious Propensity Not Allowed
  • Two Mature Dogs Allowed w/ Fees
Entertainment
  • TV's (Multiple)
  • Wireless Internet
Exterior Amenities
  • Covered Deck
  • Enclosed Outdoor Shower
  • Observation Deck
  • Sun Deck
Extra Nights
  • Extra Nights (No)
Fireplace
  • Gas Fireplace
Grill
  • Gas Grill
Interior Amenities
  • C/AC & Heat
  • Ceiling Fan(s)
  • Fully Equipped Kitchen
Keyless
  • Keyless (Yes)
Laundry
  • Washer/Dryer
Linens/Towels
  • Linens & Towels Provided
Location
  • Oceanfront
Parking
  • Private Driveway
Private Suites
  • 2 Private Suites
Smoking / Vaping
  • No Smoking or Vaping Allowed
Stay Type
  • Weekly
View
  • Ocean Views

Guest Info Policies

REVIEW INFORMATION and IMPORTANT TIPS about check-in and check-out, keyless entry, trash collection days, and other important tips and policies. 

TRAVEL INSURANCE  Learn more about Sun Trip Preserver Trip Cancellation and Trip Interruption Policy.

SECURITY DEPOSIT WAIVER  - Review the damage waiver policy offered by Red Sky Insurance.  

TOP 10 THINGS TO DO ON THE OBX  We made a list of the top ten favorites and then added a few more.  Check out our favorites for your adventure on the OBX.

OBX BEACH SAFETY TIPS - Following a few simple safety tips can help make your time by the ocean safe and enjoyable. Your safety matters.


Reviews Rating 4.5 (36) Reviews
Rating 4
Michelle H. - Stayed: 5/16/2026
Rating 5
Libby S. - Stayed: 5/2/2026
Rating 5
Betsy P. - Stayed: 4/25/2026
Rating 5
A Relaxing Stay with Minor Hiccups We just returned from a wonderful week at this charming vacation rental in the serene, tucked-away corner of the Outer Banks (OBX). As a family of 6, all over 55, we were looking for a peaceful spot to unwind, and this home delivered beautifully on that front. Nestled in a very quiet neighborhood, it felt like our own private slice of paradise – far from the crowds, yet just a short stroll to the beach. Waking up to those breathtaking, picturesque sunrises over the ocean was an absolute highlight; the views from the deck were postcard-perfect and made every morning feel special. The house itself was spot-on for our needs, with all the essential amenities thoughtfully provided – comfortable beds, a well-stocked kitchen, and cozy living spaces that invited lazy afternoons with books and board games. Being so close to the ocean meant we could pop down for a morning walk or evening shelling without any hassle, which was a huge plus for our group. That said, a couple of small issues popped up that could use some attention. The Roku TVs were a bit tricky to navigate at first – we're all creatures of habit from years of cable TV, so the streaming setup took some trial and error (maybe a quick cheat sheet or remote labels would help future guests like us?). Also, the propane tanks for the gas grill and fireplace arrived empty, but kudos to the management team at Joe Lamb – one quick call, and it was topped off the very next day. No big disruption there. One frustration was the trash service; it wasn't collected from the previous renters by the promised date, and the receptacles were never brought to or from the house during our stay as outlined by the contractor. We ended up handling the curb runs ourselves to keep things tidy, but it felt like an extra chore we shouldn't have needed to manage. Overall, this home gets a solid 4 out of 5 stars from us – the location and tranquility more than made up for the minor logistics. We'd happily return for those magical OBX sunrises and recommend it to anyone seeking a low-key beach escape. Thanks for the memories!
Chuck A. - Stayed: 10/18/2025
Rating 5
Steve N. - Stayed: 10/11/2025
Rating 3
Earlene J M. - Stayed: 9/20/2025
Rating 5
Matthew R. - Stayed: 9/13/2025
Rating 4
Yes bring a baby gate ( Maybe 2 but definitely 1)
James G. - Stayed: 8/30/2025
Rating 4
The location of this house is excellent. Views of the sunrise and sunset are available. The house layout is great. The main level provides open access and allows easy conversation, dining, and views of the ocean.
Gerald Brown - Stayed: 7/19/2025
Rating 4
Donna Bell - Stayed: 6/14/2025
Rating 4
Great place with a fantastic view!
Brooke Loving - Stayed: 6/7/2025
Rating 4
Rosanna Silcott - Stayed: 5/31/2025
Rating 5
We’ve stayed at this house several times and absolutely love it. The fully stocked kitchen makes it easy to cook and feel at home, and the ocean views are just stunning. You can’t beat the direct beach access—it’s perfect for morning walks or sunset watching. Booking through Joe Lamb is always a smooth experience; they’re responsive, professional, and easy to work with. We’re already looking forward to our next stay!
Libby Schreiner - Stayed: 5/3/2025
Rating 5
It is a wonderful property. We have stayed here three years and counting. It feels like home away from home.
Melissa Swan - Stayed: 10/26/2024
Rating 4
Dennis Beck - Stayed: 10/12/2024
Rating 5
This was our first time in all of our years of coming to OBX that we did not stay on Hatteras Island. I am so happy we chose farther North! The house was immaculate
Vicki Tims - Stayed: 9/28/2024
Rating 5
The location is outstanding. So close to beach and especially loved the private walkway. Beautiful views of both ocean and soundside. Cranberry Cottage far exceeded my expectations! Absolutely wonderful stay. Have been coming for years and this is my favorite house!
Suzanne Heath - Stayed: 8/24/2024
Rating 4
We love the cottage. The bed and bathroom situations are perfect. And the beach is lovely with only a few people on the beach.
Pam Kincheloe - Stayed: 7/13/2024
Rating 5
House works well for single family. Clean
Kim Wiley - Stayed: 6/15/2024
Rating 4
Ada Hochstetler - Stayed: 6/8/2024
Rating 5
EXCELLENT - location
Donna Bell - Stayed: 5/25/2024
Rating 5
Great place to stay right on the beach! Kitchen is very well stocked
Anne York - Stayed: 5/11/2024
Rating 5
Great beach house to rent - extremely close to the beach ! Perfect ! Has everything you would need to have in the kitchen
Donna Bell - Stayed: 9/23/2023
Rating 5
Nancy E. - Stayed: 8/5/2023
Rating 5
Our group had a wonderful time in Cranberry Cottage. The location was lovely and we appreciated that the property was pet friendly!
Victoria D. - Stayed: 7/29/2023
Rating 5
Our group really enjoyed our stay, quiet part of South Nags Head with easy beach access. Rooftop deck was a fan favorite as it provided a great place to watch sunrises and sunsets.
Jim N. - Stayed: 7/1/2023
Rating 5
Beautiful place, stocked with everything you need!! Highly recommend!!
Judy L. - Stayed: 4/15/2023
Rating 5
Matthew R. - Stayed: 9/17/2022
Rating 5
Philip B. - Stayed: 8/13/2022
Rating 5
Kristin B. - Stayed: 7/16/2022
Rating 5
Ocean views are amazing. House is practically right on the beach, beautifully decorated and very comfortable. 3rd floor master and rooftop is over the top.
Wow!
Jean S. - Stayed: 7/9/2022
Rating 4
Joel H. - Stayed: 7/2/2022
Rating 4

This is a great a place to rent especially if you want to see sunrises and sunsets. Overall I was very satisfied! The views are amazing!

Lora S. - Stayed: 6/25/2022
Rating 4
Beth T. - Stayed: 5/28/2022
Rating 5
We rented this oceanfront home for a long overdo family vacation. Two of our children came in from out of state (TN and MT). We needed 3 bedrooms and 3 baths, oceanfront, and pet friendly. This home checked all the boxes, PLUS. (Two extra bedrooms). The decks (especially the crows nest) were great. Lots of outdoor seating. And the beach itself was great -- good sand, great views.
Daniel T. - Stayed: 5/21/2022
Rating 4
Very peaceful….OBX in it's natural setting
Victoria a. - Stayed: 4/16/2022
Swipe Swipe for More Reviews